For those of you thinking or planning to have a deck built in the summer of 2023, you will need to add a building permit to your ‘get started’ list.
We spoke to Permitguys.ca (who do all our professional drawings for us) so could learn more about deck building permits and ensure you don’t run into any hiccups down the road.
The following information is applicable for most municipalities around the GTA, but you will need to contact your designer to get your exact permit guidelines for your property.
Here are some basic rules around deck building permits in Toronto and the GTA:
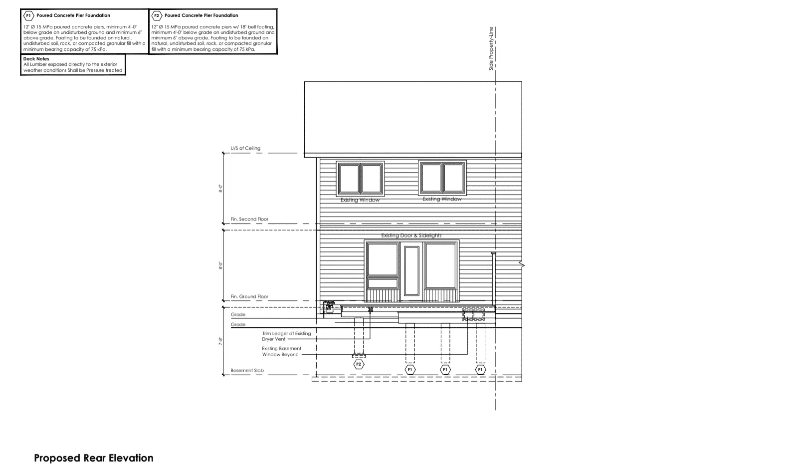
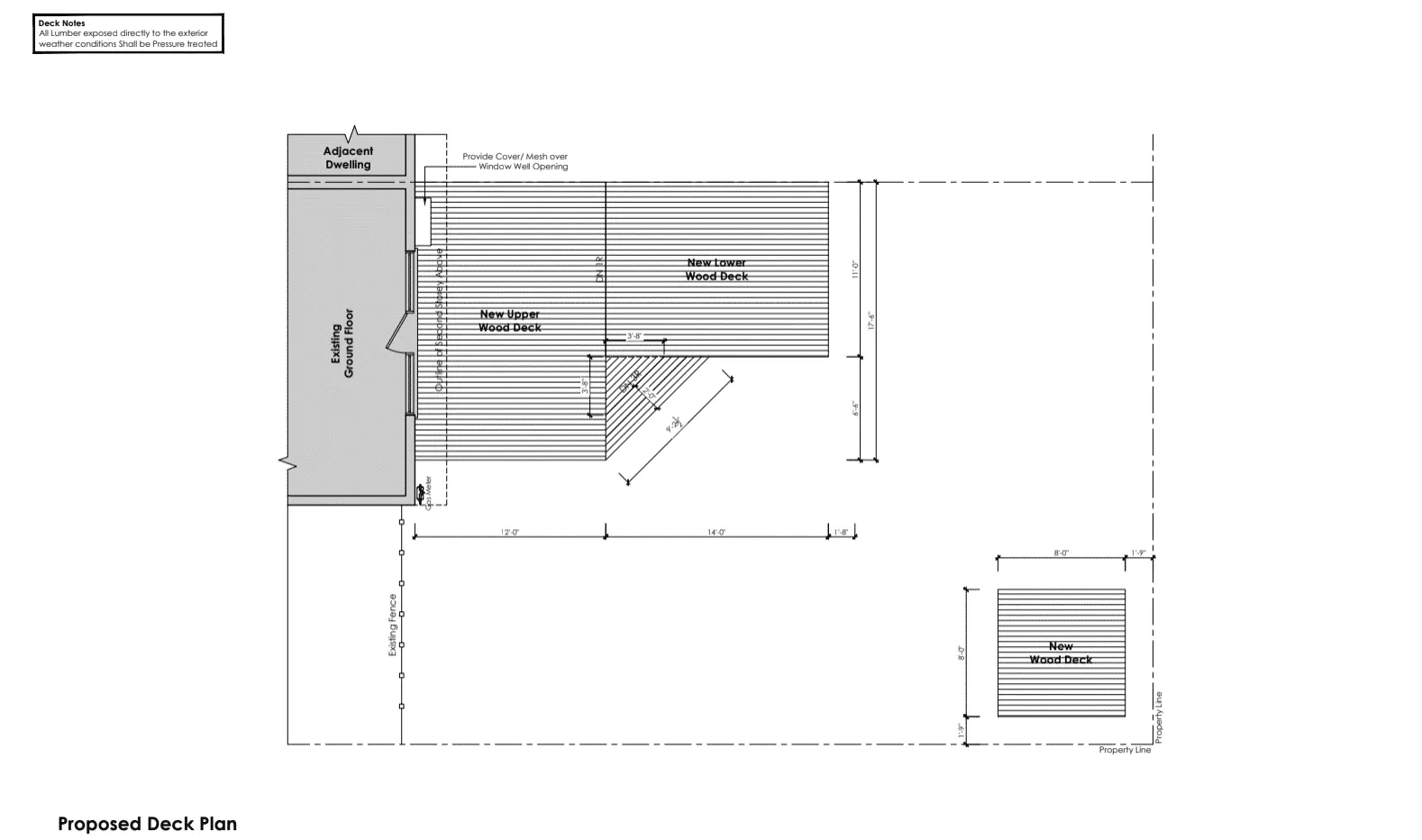
- A Building Permit is required for all decks which are more than 600 mm (2 ft.) above adjacent average grade and are attached to a building.
- A Building Permit is required for all decks which are more than 600 mm (2 ft.) above average adjacent grade and are greater than 10 m² (107.64 sq.ft.) in area;
- All footings are to be located on undisturbed soil, minimum 1.2m (4 ft) below finished grade. Both foundation and deck structure shall be designed in accordance with Division B Part 9 of the Ontario Building Code.
- Decks that meet zoning by law may still require a building permit
- Decks may also be subject to approval by heritage and conservation authority if applicable.
The Benefits of Hiring a Professional To Create Drawings
You likely have a very clear image of what you want your deck to look like. Or you may not – perhaps you just have a few ideas or some must-haves. Hiring a designer to translate visions into architectural expression that complies with the building code can make a world of difference for your project. It will help you realize your vision into a tangible design!
- Better Design Solutions: Professional Designers are trained and experienced to provide better design solutions with regards to structural integrity and durability of your project.
- Design and Details: Professional Designers are up-to-date with the latest design trends and will ensure to provide you with the best overall performance for your deck project.
Now here is the really important stuff…
The Consequences of Building a Deck Without a Permit
Order to comply: The city can issue an immediate stop work order along with a request to obtain a building permit for the design proposal.
- Order to demolish: If your deck was constructed illegally and does not comply to the Ontario Building Code or the zoning by-laws in your area, the city may order to remove the deck and bring the site back to its original condition.
- Fines: In most cases, there is a fine attached to stop work orders/ orders to demolish.
- Risk in Liability: If a person is injured on an illegal deck during or after construction, insurance companies will not take liability to cover any expenses.
- Risk in Re-Sale: New potential home-buyers can ask to see building permits in order to ensure that all construction on the property is legal and in accordance with the Ontario Building Code. If you do not have proper documentation you may lose the deal.
Basic Timeline For Working With Architectural Designers and Building Permits
Basic Timeline
Please consider that weather conditions, scope of work, different municipalities and overall complexity of your project may affect the timelines outlined below
Getting Started
- Coordinate initial design consultation meeting with your architectural designers along with a detailed site measure.
- Produce drawings illustrating existing conditions as well as a preliminary design (2-3 business days).
- If required, make amendments to preliminary design or propose alternative design options (timeline may vary depending on number of amendments).
After the Design is Finalized
- Preparation of permit-ready construction drawings and designer or engineer sign-offs (2-3 business days).
After Submitting for Building Permit
- Submit construction drawing set to the building department in your area (1-2 business day).
- City review, city comments/ change-requests and process the permit issuance (10-20 business days, depending on municipality).
- (Please be advised that city processing times may vary depending on your municipality or the number of approvals that are required. Some properties are subject to heritage and conservation approvals in addition to the conventional building permit approval.)
After Building Permits are Issued
- Utilities and service line check with Ontario One prior to construction start (up to 5 business days).
- Construction of your deck and pickup/ clean debris (5-15 business days. Timeline may vary depending on size, inspections and scope of work).
If you have any questions about any of the information above, please contact us!







